Fontdarquitectura
novetats
productes
detalls
materialitat
productes
fonamentacions
sabates
pilots
estructures
pilars
metàl·lic
formigó
fusta
bigues
metàl·lica
formigó
fusta
mixte
murs
ceràmica
formigó
fusta
mixte
forjats-lloses
metàl·lic
formigó
fusta
mixte
altres
escales
metàl·lica
formigó
altres
encofrats
additius
fixacions mecàniques
accessoris
cobertes
ceràmica
metàl·lica
formigó
polímera
bituminós
vegetal
composta
altres
canalons-baixants
claraboies-lluernaris
xemeneies
seguretat
auxiliars
tancaments-divisòries
murs cortina
parets
ceràmica
formigó-morter
vidre
polímera
compost
mampares
metàl·lica
fusta
vidre
polímer
altres
baranes
tanques
aïllaments
tèrmics
fusta
polímer
fibra
acústics
fusta
polímer
fibra
hidròfugs
morter
polímer
fibra
bituminós
ignífugs
morter
fibra
silicat
pintura-vernís
mixtes
altres
revestiments
paviments
petri
ceràmic
metàl·lic
formigó
fusta
polímer
fibra
compost
accessoris
altres
paraments
petri
ceràmic
metàl·lic
formigó
fusta
polímer
fibra
compost
altres
falsos sostres
metàl·lic
fusta
polímer
fibra
compost
accessoris
tancaments practicables
finestres-balconeres
acer
acer inoxidable
alumini
fusta
portes
acer
acer inoxidable
fusta
vidre
proteccions solars
ferramentes
automatismes
envidraments
seguretat
control tèrmic
control acústic
control solar
autonetejable
protecció al foc
corbat
altres
instal·lacions
sanejament-ventilació
arquetes-pous registre
drenatges
canalitzacions
depuracions
reixes
altres
fontaneria-reg
acumulació
conducció
arquetes
emissió
altres
electricitat
caixes-armaris
conduccions
mecanismes
climatització
calderes-bombes
estufes-llars de foc
acumuladors
difusors-reixes-toberes
sistemes radiants
splits-cassettes
cortines d'aire
altres
il·luminació exterior
superficials
encastables
espai públic
il·luminació interior
superficials
encastables
carrils
autònomes
altres
domòtica
audiovisuals-multimèdia
projectors-plasma-lcd
so
altres
comunicació-seguretat
comunicadors
control accessos
seguretat incendis
protecció
detecció
control-extinció
emergència-senyalització
transport
ascensors
muntacàrregues
altres
energia renovable
solar tèrmica
solar elèctrica
geotèrmica
equipament
bany
mobles
rentamans
inodors
urinaris
plats de dutxa
banyeres
aixetes
accessoris
altres
cuina
mobles
aigüeres
aixetes
electrodomèstics
llar
taules
cadires
sofas i sillons
tamborets
altres
oficina
taules
cadires
tamborets
senyalització
altres
exposició
altres
infantil
taules
cadires
altres
exterior
mobles jardí
jocs infantils
bancs
papereres
fonts
pàrquing bicicletes
límits-pilones
escossells
senyalització
proteccions
tanques
malles
piscines
altres
estructures
cobertes
tancaments
divisòries
revestiments
tancaments practicables
instal·lacions
equipament
materialitat
bàsica
terra
animal
mineral
vegetal
aigua
líquida
sòlida
gasosa
foc
flama
brasa
cendra
aire
llum
ombra
composta
aplicada
pètria
pedra
ciment
argila
vidre
metàl.lica
fosa
acer
or
alumini
titani
coure-bronze-llautó
fusta
polímera
fibra
animal
vegetal
mineral
sintètica
composta
suggerent
composició
textura
trama
atmosfera
detalls
fonamentacions
estructures
pilars
bigues
murs
forjats-lloses
escales
altres
cobertes
altres
tancaments-divisòries
parets
mampares
tanques
aïllaments
tèrmics
acústics
hidròfugs
ignífugs
revestiments
paviments
paraments
falsos sostres
tancaments practicables
finestres-balconeres
portes
envidraments
instal·lacions
sanejament-ventilació
fontaneria-reg
electricitat
climatització
il·luminació exterior
il·luminació interior
audiovisuals-multimèdia
comunicació-seguretat
seguretat incendis
transport
energia renovable
equipament
bany
cuina
llar
oficina
exposició
infantil
exterior
fonamentacions
estructures
pilars
bigues
murs
forjats-lloses
escales
altres
cobertes
pètria
ceràmica
vidre
metàl·lica
polímera
composta
altres
tancaments
lleugers
pesats
divisòries
parets
mampares
baranes
revestiments
paviments
paraments
falsos sostres
tancaments practicables
finestres-balconeres
portes
proteccions solars
ferramentes
automatismes
instal·lacions
sanejament-ventilació
fontaneria-reg
electricitat
climatització
il·luminació exterior
il·luminació interior
seguretat incendis
transport
energia renovable
equipament
bany
llar
oficina
exposició
exterior
nosaltres
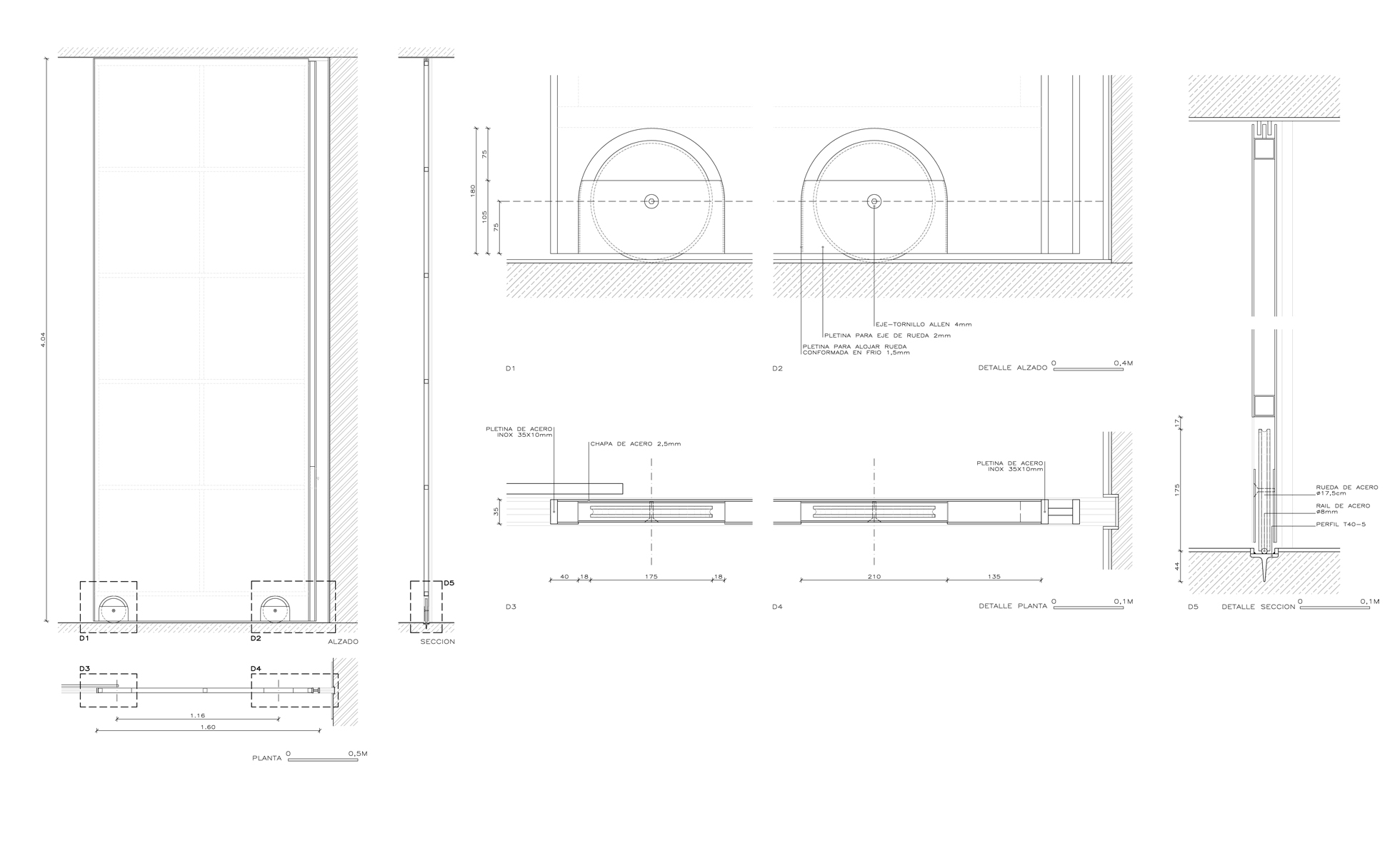
Roda per a porta corredissa d'acer
RCR Arquitectes. Espai Barberi
© RCR Arquitectes
Descarregar