Fontdarquitectura
novedades
productos
detalles
materialidad
productos
cimentaciones
zapatas
pilotes
estructuras
pilares
metálico
hormigón
madera
vigas
metálica
hormigón
madera
mixta
muros
cerámica
hormigón
madera
mixto
forjados-losas
metálico
hormigón
madera
mixto
otros
escaleras
metálica
hormigón
otros
encofrados
aditivos
fijaciones mecánicas
accesorios
cubiertas
cerámica
metálica
hormigón
polímera
bituminoso
vegetal
compuesta
otros
canalones-bajantes
claraboyas-lucernarios
chimeneas
seguridad
auxiliares
cerramientos-divisorias
muros cortina
paredes
cerámica
hormigón-mortero
vidrio
polímera
compuesto
mamparas
metálica
madera
vidrio
polímero
otros
barandillas
vallas
aislamientos
térmicos
madera
polímero
fibra
acústicos
madera
polímero
fibra
hidrófugos
mortero
polímero
fibra
bituminoso
ignífugos
mortero
fibra
silicato
pintura-barniz
mixtos
otros
revestimientos
pavimentos
pétreo
cerámico
metálico
hormigón
madera
polímero
fibra
compuesto
accesorios
otros
paramentos
pétreo
cerámico
metálico
hormigón
madera
polímero
fibra
compuesto
otros
falsos techos
metálico
madera
polímero
fibra
compuesto
accesorios
cerramientos practicables
ventanas-balconeras
acero
acero inoxidable
aluminio
madera
puertas
acero
acero inoxidable
madera
vidrio
protecciones solares
herrajes
automatismos
acristalamientos
seguridad
control térmico
control acústico
control solar
autolimpiable
protección al fuego
curvado
otros
instalaciones
saneamiento-ventilación
arquetas-pozos registro
drenajes
canalizaciones
depuraciones
rejas
otros
fontanería-riego
acumulación
conducción
arquetas
emisión
otros
electricidad
cajas-armarios
conducciones
mecanismos
climatización
calderas-bombas
estufas-chimeneas
acumuladores
difusores-rejas-toberas
sistemas radiantes
splits-cassettes
cortinas de aire
otros
iluminación exterior
superficiales
empotrables
espacio público
iluminación interior
superficiales
empotrables
carriles
autónomas
otros
domótica
audiovisuales-multimedia
proyectores-plasma-lcd
sonido
otros
comunicación-seguridad
comunicadores
control de accesos
seguridad incendios
protección
detección
control-extinción
emergencia-señalización
transporte
ascensores
montacargas
otros
energía renovable
solar térmica
solar eléctrica
geotérmica
equipamiento
baño
muebles
lavamanos
inodoros
urinarios
platos de duchas
bañeras
grifería
accessorios
otros
cocina
muebles
fregaderas
grifería
electrodomésticos
hogar
mesas
sillas
sofás y sillones
taburetes
otros
oficina
mesas
sillas
taburetes
señalización
otros
exposición
otros
infantil
mesas
sillas
otros
exterior
muebles jardín
juegos infantiles
bancos
papeleras
fuentes
parking bicicletas
limites-pilonas
alcorque
señalización
protecciones
vallas
mallas
piscinas
otros
estructuras
cubiertas
cerramientos
divisorias
revestimientos
cerramientos practicables
instalaciones
equipamiento
materialidad
básica
tierra
animal
mineral
vegetal
agua
líquida
sólida
gaseosa
fuego
llama
brasa
ceniza
aire
luz
sombra
compuesta
aplicada
pétrea
piedra
cemento
arcilla
vidrio
metálica
fundición
acero
oro
aluminio
titanio
cobre-bronce-latón
madera
polímera
fibra
animal
vegetal
mineral
sintética
compuesta
sugerente
composición
textura
trama
atmosfera
detalles
cimentaciones
estructuras
pilares
vigas
muros
forjados-losas
escaleras
otros
cubiertas
otros
cerramientos-divisorias
paredes
mamparas
vallas
aislamientos
térmicos
acústicos
hidrófugos
ignífugos
revestimientos
pavimentos
paramentos
falsos techos
cerramientos practicables
ventanas-balconeras
puertas
acristalamientos
instalaciones
saneamiento-ventilación
fontanería-riego
electricidad
climatización
iluminación exterior
iluminación interior
audiovisuales-multimedia
comunicación-seguridad
seguridad incendios
transporte
energía renovable
equipamiento
baño
cocina
hogar
oficina
exposición
infantil
exterior
cimentaciones
estructuras
pilares
vigas
muros
forjados-losas
escaleras
otros
cubiertas
pétrea
cerámica
vidrio
metálica
polímera
compuesta
otros
cerramientos
ligeros
pesados
divisorias
paredes
mamparas
barandillas
revestimientos
pavimentos
paramentos
falsos techos
cerramientos practicables
ventanas-balconeras
puertas
protecciones solares
herrajes
automatismos
instalaciones
saneamiento-ventilación
fontanería-riego
electricidad
climatización
iluminación exterior
iluminación interior
seguridad incendios
transporte
energía renovable
equipamiento
baño
hogar
oficina
exposición
exterior
nosotros
Revestimiento de chapa de acero
RCR Arquitectes. Museo Soulages
© RCR Arquitectes
Descargar
Revestimiento de vidrio
P. Zumthor. Museo de Arte de Bregenz
© P. Zumthor
Descargar
Rev. chapa de inox perforada
RCR Arquitectes. Ampliació i millora de l'est. de Sants
© RCR Arquitectes
Descargar
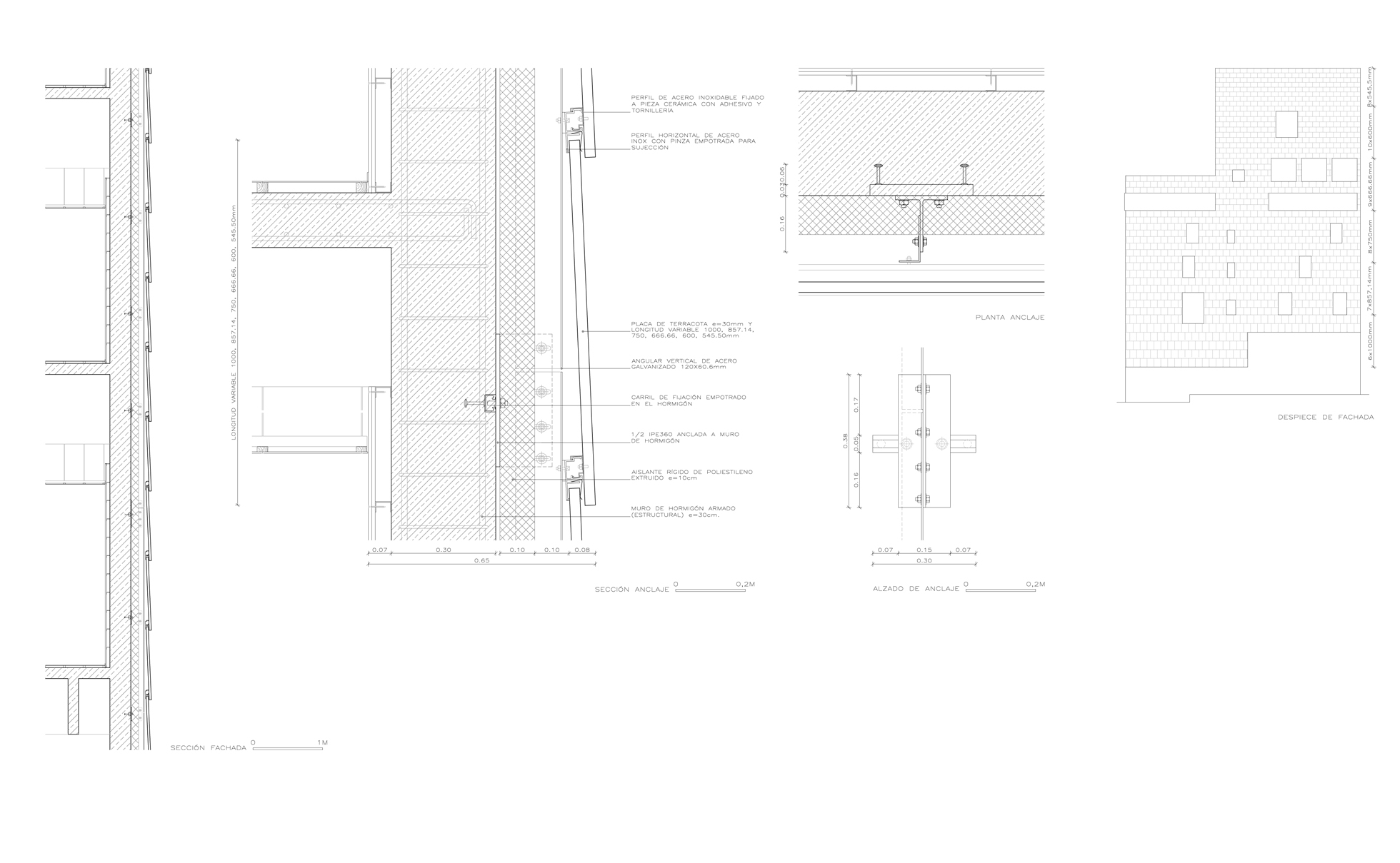
Revestimiento de paneles de terracota
Caruso St john Architects. Galeria de arte en Walsall
© H. Binet
Descargar